The Sydney Morning Herald logo
Advertisement

This was published 7 years ago

The Canberra Raiders will get a $19m centre of excellence in Braddon

David Polkinghorne

A groundbreaking three-way deal will see the ACT and NSW governments team up to help the Canberra Raiders secure their long-term NRL future and put them in the heart of the city.

As part of the ACT budget, Fairfax Media can reveal the ACT government will announce $5 million in funding over three years for the Raiders centre of excellence at Northbourne Oval on Monday.

Their NSW counterparts have pledged $4 million, while the Raiders Group will fund the rest.

Both the ACT and NSW governments will provide a combined $9 million for the Raiders centre of excellence.

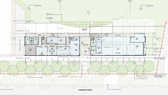
The $19 million redevelopment will see the Green Machine move their base from Bruce to the state-of-the-art facility at Braddon, which was expected to be ready by the end of 2019.

Advertisement

It will house not only their NRL team, but their juniors as well - plus a women's team if they decide to enter one into the NRL's competition.

The centre will include a gym, medical and sports-science facilities, and room to house community programs such as former Raiders captain Alan Tongue's mentoring and team-building programs, as well as Menslink and PCYC youth programs.

It also opens the way for their current Bruce headquarters to become an academy for the NSW Country Rugby League.

ACT Sports Minister Yvette Berry said the centre highlighted how governments could work together.

"This is another important ACT government investment in Canberra’s growing and diversifying economy,"
she said.

Advertisement

"Providing a state-of-the-art HQ for one of Canberra’s elite sporting teams, combined with new community
facilities, in the heart of the city will enhance the area and provide new opportunities for Canberrans of all
ages and abilities to get involved with the sport.

"In addition to this facility supporting rugby league programs in the ACT, it will also support the surrounding
NSW region.

Monaro MP John Barilaro and ACT sports minister Yvette Berry have worked together help make the Raiders centre a reality.Georgina Connery

"This project provides an excellent example of what can be achieved in partnership when
governments work together."

The facility will be ready ahead of the 2020 NRL season and will be the first sporting facility built in the ACT as part of the cross-border agreement between the two governments.

Advertisement

Monaro MP John Barilaro said while the centre would be built in Canberra, it would benefit rugby league players from country NSW as well.

A raft of current and past Raiders players came from country NSW, including captain Jarrod Croker (Goulburn), Shannon Boyd (Cowra) and fullback Jack Wighton (Orange).

The two governments signed a memorandum of understanding to work more closely together in 2016.

Barilaro said the Raiders would continue to play trial games in country NSW.

"It will provide borderless access to high-level coaching, training and mentoring support, as well as additional
NRL competition and trial games in regional NSW towns," he said.

Advertisement

"Everyone from under-6s through to adults will have access to carnivals, clinics and training camps and elite
game development opportunities - further benefitting the health and well-being of our regional communities.

"Additional competition and trial games will be held in Wagga Wagga, Bega and Queanbeyan, helping to
revitalise the link between high-performance sport and community engagement."

Berry said the Braddon facility would help the Raiders attract and retain players.

The NSW government gave six NSW NRL clubs grants for their own centres last year, with Newcastle, South Sydney, Cronulla, the Sydney Roosters, Canterbury and Wests Tigers all getting various levels of funding.

Advertisement

The Gold Coast Titans opened a new centre in 2016, which at the time prompted Raiders coach Ricky Stuart to say his club would fall behind if they didn't improve their facilities as well.

"The upgraded facility will also provide a permanent high-performance training venue for the Canberra
Raiders with an upgrade to the oval and a new building which will include a gym, medical and sports science
facilities, new change rooms, office spaces and meeting rooms," Berry said.

"We want to make sure the Canberra Raiders continue to be competitive in the NRL and we believe a high-performance training facility will help attract and retain elite players."

Tuesday's budget is shaping as an active one for Canberra sport.

Advertisement

Fairfax Media revealed on Friday the $2.2 million to redevelopment Higgins Oval, along with $1.7 million to replace the Nicholls Oval's synthetic surface.

They've increased maintenance funding to $14.3 million - up $1.2 million from last financial year.

There's also expected to be funding for the ACT government's cycling tourism plan.

NRL ROUND 14

Friday: Canberra Raiders v Penrith Panthers at Canberra Stadium, 6pm. Tickets available from Ticketek.

David PolkinghorneDavid Polkinghorne covers the Canberra Raiders, local rugby league, Canberra Cavalry, racing and cycling, along with every other sport, for The Canberra Times.Connect via X or email.

From our partners

Advertisement
Advertisement