The Sydney Morning Herald logo
Advertisement

This was published 9 years ago

Bulimba Barracks: Council adopts master plan

Cameron Atfield

Updated ,first published

Brisbane City Council has formally adopted a new master plan for the Bulimba Barracks site, which will allow the defence-owned property to be sold to developers.

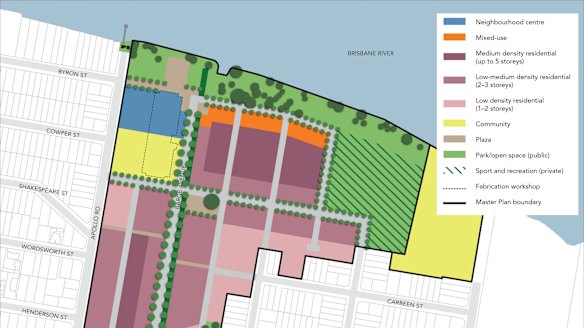
The master plan, which was formally incorporated into the city plan on Tuesday afternoon, allowed for a maximum of five storeys on the site, with most unit blocks to be either two or three storeys.

The master plan, which was formally incorporated into the city plan on Tuesday afternoon, allowed for a maximum of five storeys on the site.

There will also be public access to prime riverfront land and an oval with dimensions suitable for Australian Rules football.

But the lack of a park-and-ride facility for the Apollo Road CityCat terminal prevented its unanimous support among councillors.

Advertisement
The draft Bulimba Barracks master plan.

Local Labor councillor Shayne Sutton (Morningside), the opposition's planning spokeswoman, said she could not support the plan, despite what she said were the community benefits contained in the document.

"This has been occupying a great deal of my time, ever since the Department of Defence announced that it was going to sell the land," she said.

"… I support all of the amendments that have been made in the plan that is here before us, from the version of the major amendment that went out to the changes that have been made in response to the submitters.

"But there is one thing that is not in this plan that I had so dearly hoped would be in this plan by the time it got here today, and that is the park-and-ride."

Advertisement
City planning chairman Julian Simmonds said the council was seeking to ensure that the history of the site was recognised.Bradley Kanaris

The absence of that park-and-ride, Cr Sutton said, would prevent her and her Labor colleagues from voting in favour of the mater plan.

"That really is a deal-breaker for me and as much as I hate it, it means I can't support it today," she said.

"I was genuinely, sincerely wanting to support this today and I support the bulk of what's in it, but I cannot be part of repeating the same mistakes that were made – admittedly by the Soorley (Labor) administration – when we redeveloped the site at Bulimba next to the ferry terminal."

The Liberal National Party administration's city planning chairman Julian Simmonds said the council was able to accommodate a "fair chunk" of the changes suggested by the public submissions, such as ensuring publicly accessible fields could accommodate a range of sports.

Advertisement

"We are seeking to ensure that the history of the site is recognised – that can be done through signage or the naming of streets and the like," he said.

"I am not going to be overtly critical of Cr Sutton's position," he said.

"At the very least, she has been consistent. She has always maintained this is a deal-breaker and I understand her position on that for her community.

"The reality is that previously, during the previous state interest check, the Deputy Premier indicated (the Department of Transport and Main Roads) were reviewing this as a park-and-ride site.

"... Disappointingly, we haven't had any feedback on that to date."

Advertisement

Cr Simmonds said a park-and-ride could yet be included if it was identified in the next state interest check.

Lord Mayor Graham Quirk said the master plan, the development of which started in August 2015, was the result of extensive community consultation.

The amendment to the City Plan passed in the council chamber on Tuesday afternoon on party lines, with Labor councillors joining the two other non-administration representatives in voting against its adoption.

Cameron AtfieldCameron Atfield is a journalist at Brisbane Times.Connect via Facebook or email.

From our partners

Advertisement
Advertisement